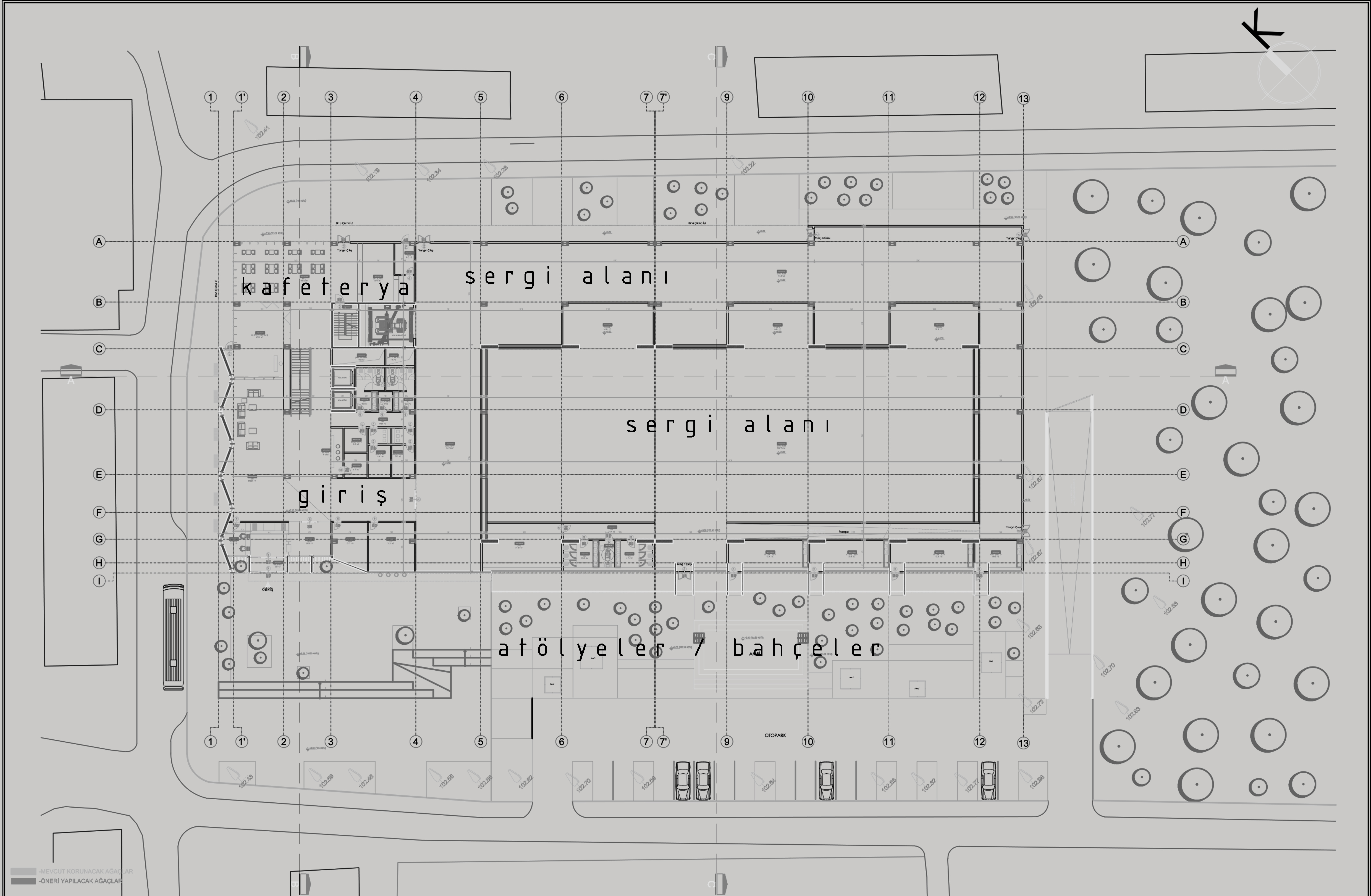
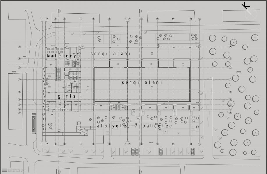
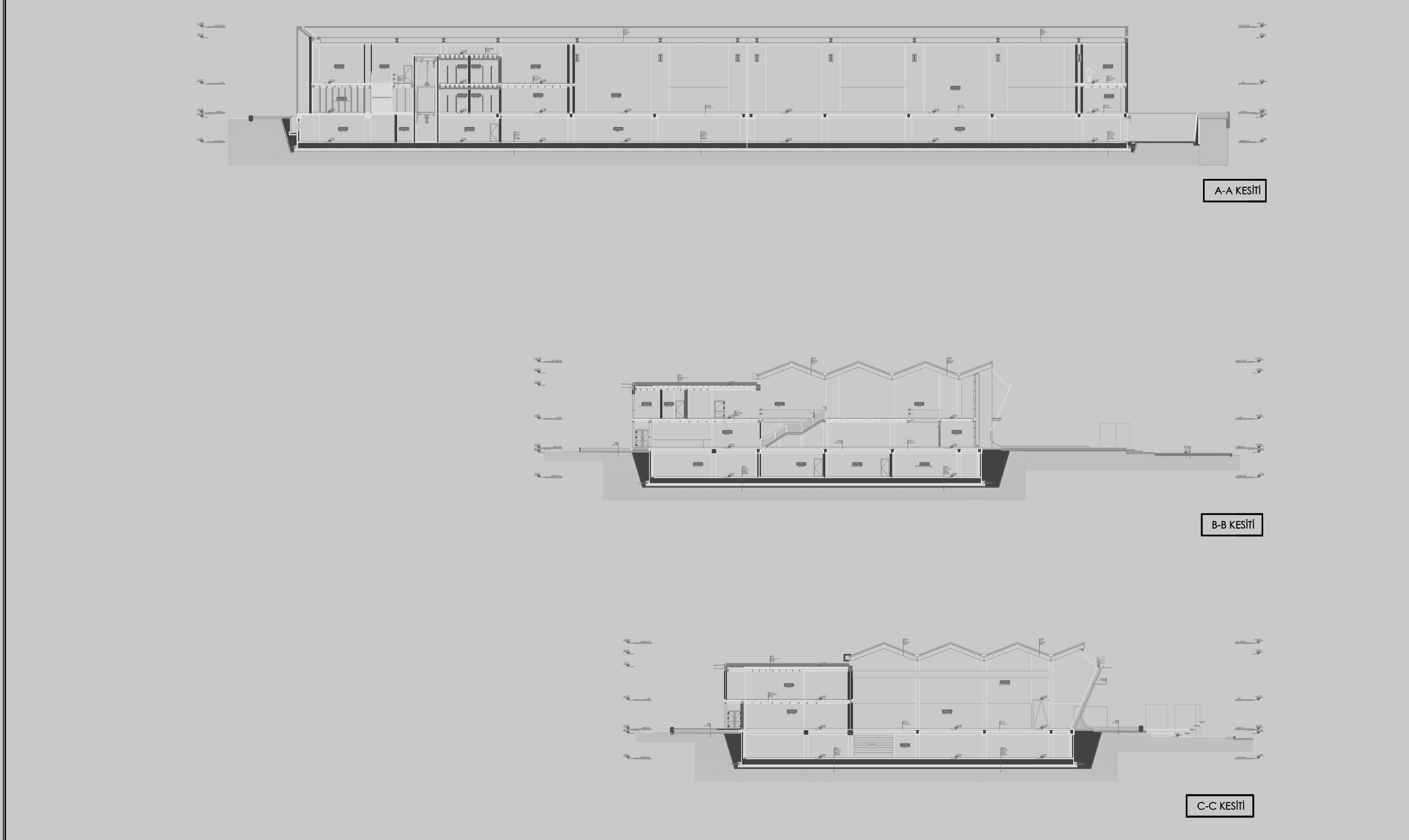
• Kategori_

       Kamusal

       Tarih_

       2016

       Konum_

       BURSA

       Ekip_

      Ahmed İ. Bilgin, Serhat Özlü, Hasan Kavan